Active
Listed by Lorilyn Barrett of Coldwell Banker Yorke Realty

294 York Street, Unit Unit # 1York, ME 03909Price: $1,089,000

  • Price: $1,089,000
  • Est. Mortgage of $/month
  • 117 Days on Market
$
$
%
$/month over payments
Federal 30-year interest rate: 6.11% last updated on Mar 12, 2026
* All Figures are estimates. Check with your bank or proposed mortgage company for actual interest rates.
This product uses the FRED® API but is not endorsed or certified by the Federal Reserve Bank of St. Louis.
  • $1,089,000List Price
  • 3Bedrooms
  • 3Bathrooms
  • 0.54Acreage
  • 1,816Square Feet
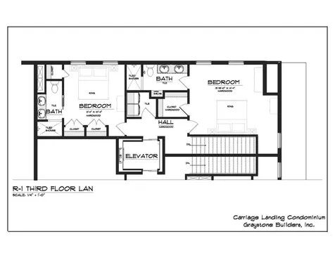
WELCOME TO YORK VILLAGE'S NEWEST LUXURY TOWNHOME COMMUNITY - Carriage Landing ~ where luxury, location, and lifestyle meet for everyday living. Designed and built by Graystone Builders, Inc., this to-be-built multi-level luxury condo townhome offers open-concept living, hardwood floors throughout and natural light. Designed with flexibility in mind, the main level allows the third bedroom to transition seamlessly into a dedicated home office, ideal for modern needs. Create the kitchen of your dreams and one designed around your lifestyle with generous allowances for custom cabinetry, countertops, appliances and lighting. The shared private-entry elevator (with Unit 2), laundry room, a condo-munity exercise room, private storage dedicated parking spaces elevate convenience and comfort. An option of TWO primary suites features large closets and a tile surround walk-in shower and dual sinks. Reset and unwind by the fireplace in the living room or by enjoying fresh air on the private balcony. Live in one of New England's most picturesque and sought-after coastal communities. Only 0.8 miles to York Harbor Beach and a 5-minute drive to Long Sands Beach. York Hospital, golf, tennis, and area marinas are within minutes. Carriage Landing offers a rare opportunity to live in a walkable village setting while enjoying all the comforts of modern luxury. Portsmouth, Portland, and Boston are all within reach with the Maine coast as your backdrop. Don't miss out on this unique opportunity!

Listing Tools

Property Details

Interior Features

Exterior Features

Utilities and Appliances

Community

Broker Reciprocity 

Copyright 2026 PrimeMLS, Inc. All rights reserved. This information is deemed reliable, but not guaranteed. The data relating to real estate displayed on this display comes in part from the IDX Program of PrimeMLS. The information being provided is for consumers’ personal, non-commercial use and may not be used for any purpose other than to identify prospective properties consumers may be interested in purchasing. Data last updated March 17, 2026 8:54 AM EDT

 

Hi there! How can we help you?

Contact us using the form below or give us a call.

Send Us A Message:

I agree to receive marketing and customer service calls and text messages from Brett Mulvey. To opt out, you can reply 'stop' at any time or click the unsubscribe link in the emails. Consent is not a condition of purchase. Msg/data rates may apply. Msg frequency varies. Privacy Policy.

Do not fill in this field:

This site is protected by reCAPTCHA and the Google Privacy Policy and Terms of Service apply.

Hi there! How can we help you?

Contact us using the form below or give us a call.

Send Us A Message:

Do not fill in this field:

This site is protected by reCAPTCHA and the Google Privacy Policy and Terms of Service apply.

Hi there! How can we help you?

Contact us using the form below or give us a call.

Send Us A Message:

Do not fill in this field:

This site is protected by reCAPTCHA and the Google Privacy Policy and Terms of Service apply.

Do not fill in this field:

This site is protected by reCAPTCHA and the Google Privacy Policy and Terms of Service apply.

Do not fill in this field:

This site is protected by reCAPTCHA and the Google Privacy Policy and Terms of Service apply.

Do not fill in this field:

This site is protected by reCAPTCHA and the Google Privacy Policy and Terms of Service apply.

$

Do not fill in this field:

This site is protected by reCAPTCHA and the Google Privacy Policy and Terms of Service apply.

Map Location

ocean sunset background ocean sunset background

Map Location

Driving Directions

ocean sunset background

Do not fill in this field:

I agree to receive marketing and customer service calls and text messages from Brett Mulvey. To opt out, you can reply 'stop' at any time or click the unsubscribe link in the emails. Consent is not a condition of purchase. Msg/data rates may apply. Msg frequency varies. Privacy Policy.

This site is protected by reCAPTCHA and the Google Privacy Policy and Terms of Service apply.

Schedule A Visit

Schedule a Visit

I agree to receive marketing and customer service calls and text messages from Brett Mulvey. To opt out, you can reply 'stop' at any time or click the unsubscribe link in the emails. Consent is not a condition of purchase. Msg/data rates may apply. Msg frequency varies. Privacy Policy.

This site is protected by reCAPTCHA and the Google Privacy Policy and Terms of Service apply.